Inspiraatiota jälleenrakennuskausien mestaritöistä
Puukerrostalo Havulan demosuunnitelma hakee arkkitehtonisen innoituksensa 1920- ja 1950-lukujen kohtuuhintaisesta kunnallisesta asuntotuotannosta Helsingin vehreiltä keskialueilta. 2020-luvun asuntorakentamisella on paljon opittavaa näistä paljon köyhemmistä vuosista, jolloin saatiin kuitenkin rakennettua jotain pysyvästi kestävää ja rakastettua. Käpylän puukerrostaloalue ja Käärmetalo muodostavat valtakunnallisesti merkittävän rakennetun kultuuriympäristön.
Puu-Käpylä: maanläheistä klassismia
Puukerrostalo Havula pyrkii joustavaan, kestävään ja inhimilliseen asuinarkkitehtuuriin. Rakennus hakee innoituksensa 1920-luvun rakastetusta Puu-Käpylän asuinalueesta Helsingissä. Sen kaavan laati Birger Brunila (1892–1979) ja rakennussuunnittelusta vastasi Martti Välikangas (1893–1973). Aluetta pidetään yhtenä Suomen parhaista kaupunkimaisemista ja 1920-luvun pohjoismaisen klassismin huippusaavutuksena.

Välikangas yhdisti rauhalliseen ja arvokkaaseen klassistiseen traditioon kansanrakentamisen inhimillisyyttä. Oleellisia keinoja ovat maavärien käyttö sekä ovela detaljointi. Brunilan kaupunkisuunnittelu mukailee suomalaista 1800-luvun alun vehreää ja tilavaa puuempirekaupunkia. Suurilla yhteispihoilla on yhä puutarhoja ja juuresmaita. Persoonallisesti sisustetut parvekkeet kertovat asukkaiden elämäntavoista.

Käpylä oli standardoinnin pioneerityö, jossa alueelle perustettu saha valmisti määrämittaista hirttä. Rakennukset on rakennettu toisteisesti arkkitehti Akseli Toivosen (1887–1954) elementtikonseptin mukaan. 2 vuotta sisällissodan jälkeen aloitettu projekti oli Helsingin kaupungin onnistunut ponnistus työväen asumistason nostamiseksi. Alueella on yhä kaupungin vuokra-asuntoja, ja satavuotiaana se on yhä rakastettu ja haaveiltu asuinpaikka.
Käärmetalo: hyvinvointivaltion kiemurteleva monumentti

Käpylän lähellä Mäkelänkadun toisella puolella on toinen suomalaisen asuntoarkkitehtuurin klassikko, Yrjö Lindegrenin (1900–1952) Käärmetalo (1951). 190 asunnon rakennus oli ensimmäisiä Arava-kohteita ja näyte uuden asuntolainajärjestelmän mahdollisuuksista. Samalla se oli osa jälleenrakennushanketta Suomen noustessa takaisin jaloilleen toisen maailmansodan jälkeen. Lindegren oli saanut mainetta jo 1930-luvulla suunnitellessaan Helsingin Olympiastadionin Toivo Jäntin kanssa. Käärmetaloon hän sommitteli kaksi mutkittelevaa rakennusmassaa, joista lyhyemmässä on 4 ja pidemmässä 12 lamellia. Kokonaisuuteen kuului myös palvelurakennus Käpylinna, jossa oli päiväkoti, pesutupa, sauna ja uima-allas.

Peruslameliissa porrashuoneesta kuljetaan kerrostasolla kahteen läpitalon ulottuvaan ja yhteen pihan puoleiseen asuntoon. Huonetilat ovat sopusuhtaisia ja asunnot valoisia. Runkosyvyys vaihtelee polveleilevassa massassa 9 ja 13 metrin välillä, ja käärmeen kaartelu luo rakennukselle mielenkiintoisen silhuetin ja se julkisivuun kauniin varjojen leikin. Käärmetaloa ei ole tehty elementeistä, mutta toisteisuus ja rakenteellisuus ovat sen arkkitehtuurin keskeisiä elementtejä. Mona Schalinin Käärmetalon restaurointi voitti arkkitehtuuri-Finlandian 2019.
Puukerrostalo Havula: ajattomuutta tilamoduuleilla

Havula-puukerrostalosuunnitelma tavoittelee Puu-Käpylän maanläheistä tunnelmaa pihapiireineen sekä Käärmetalon mielenkiintoista silhuettia ja korkeatasoista asuntopohjasommittelua. Työvälineenä on alati kehittyvä tilamoduulirakentaminen. Rakennus on puuta kantavalta rakenteeltaan ja julkisivumateriaaliltaan.
Pienipäästöistä puurakentemista
Elämme ilmastonkriisissä, ja ilmakehää lämmittävien hiilidioksidipäästöjen raju vähentäminen on edellytys planeetan elinkelpoisuuden säilyttämiselle. Rakennusektori ja varsinkin uudisrakentaminen ovat merkittäviä päästölähteitä. Kestävyyden takia on ensisijaista varmistaa olemassa olevien rakennusten käyttökelpoisuus hoidolla ja korjaamalla. Uutta asuntorakentamista kuitenkin tarvitaan paikoin, jotta asumisen hinta ei nousisi ihmisten tulotason saavuttamattomiin.
Uudisrakentamisen hiilijalanjälkeä voi pienentää vähentämällä suuripäästöisen materiaalien eli betonin, poltetun tiilen ja teräksen käyttöä. Pienempipäästöisiä vaihtoehtoja ovat esimerkiksi luonnonkivi ja puu, joista jälkimmäinen toimii pitkän käyttöiän kohteissa hiilinieluna. Puurakennuksien suunnittelussa on toisaalta otettava huomioon materiaalihankinnan riskit: monet metsien eliölajit ovat häviämässä, ja metsäteollisuus on Suomessa monimuotoisuutta eniten hävittävä sektori. Kestävä puurakentaminen vaatii pohjalleen kestävän metsätalouden.

Betonikerrostalojen rakentamisen tuotantoketjut ovat Suomessa hiottu huippuunsa vuosikymmenten aikana. Puukerrostalo ovat vielä erikoiskohteita, eivätkä ole siksi päässeet taloudellisuudessaan betonitalojen tasolle. Rakennusprosessia on tehostettu tilamoduulirakenteella, jossa kokonaiset huonetilat tehdään konttimaisina rakenteina tehtaalla ja kasataan päällekkäin työmaalla. Paikalla rakennetaan yleensä vesikatto sekä toisinaan parvekkeet ja julkisivuverhoukset. Työn laatu saadaan tasaiseksi tehdasolosuhteissa. Standardoinnin tehokkuusajatus on sama kuin Käpylässä 1920-luvulla, mutta sadassa vuodessa esivalmistusaste on noussut hurjasti. Esivalmistamisessa paikallisuus on yhä oleellista, sillä pitkät kuljetusmatkat lisäävät päästöjä ja kustannuksia. Puurakenteinen tilamoduulikaan ei ole aivan uusi keksintö, vaan sitä käytettiin esimerkiksi Heikki ja Kaija Sirénin Tapionsolu-kohteessa Espoon Tapiolassa 1967.
Laadukkaan tilaratkaisun rakennuspalikat
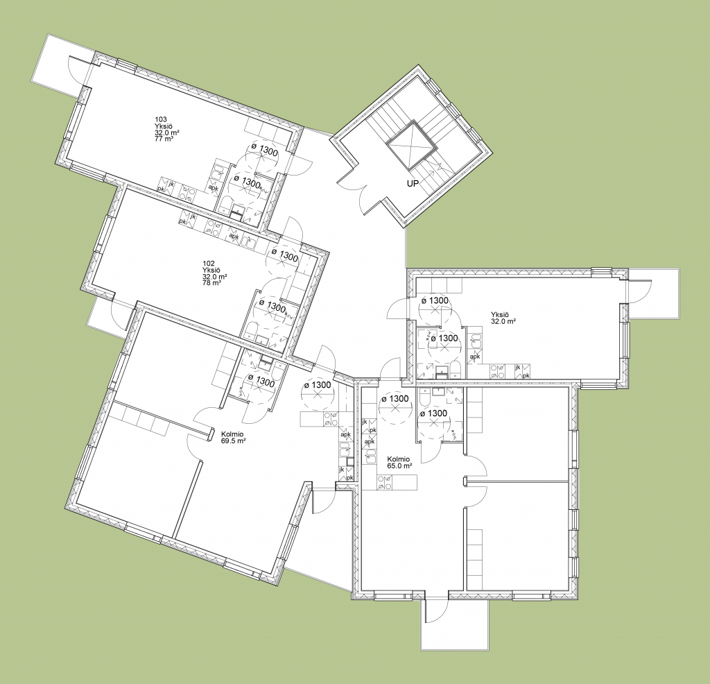
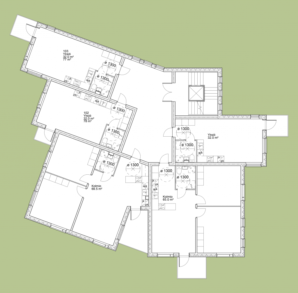
Tilamoduulirakennuksen suunnittelussa oleellista on moduulin sisämitat. Asuintilojen leveys on tärkein monipuolisen kalustettavuuden mahdollistama tekijä. Sen pitäisi olla vähintään 3,6 m. Lisäksi yhteen tilamoduuliin tulisi sopia hyvä ja asuttava yksiö. Näillä periaatteilla Havulan tilamoduulin sisämitoiksi on valittu mukavat tasaluvut 4 m x 8 m eli pinta-ala on 32 m².

Asuntosuunnittelun perusidea on anonyymit raakatilat. Neljän metrin huoneleveys sopii moneen eri käyttötarkoitukseen, ja asukkaat päättävät huonejärjestyksen itse. Tiloihin on mahdollista rakentaa jälkikäteen rajaavia väliseiniä ja esimerkiksi makuualkoveja. Kolmioissa kevyitä seiniä voidaan purkaa ja moduulien välisiin seiniin voidaan avata uusia aukkoja, mikäli huonejakoa halutaan muuttaa. Kaikki asunnot saavat luonnonvaloa vähintään kahdesta ilmansuunnasta. Toisaalta huoneissa on riittävästi ehyttä seinäpintaa sitä tarvitsevia kirjahyllyjä ja vuoteita varten.
Tilamoduuleita voi käyttää muutenkin kuin kerrostalon pinottavina osina. Ne tuovat joustavuttaa asuntojen yhteistiloihin. Pihalle tuotavat kauttaaltaan lämpöeristetyt ja vesikatoilla suojatut moduulit toimivat pihasaunana, etätyöaittana, palvelutiloina ja lisävarastoina. Puurakenteinen kantavapohjainen moduuli voidaan perustaa kevyesti esimerkiksi ruuvipaaluille, ja tarpeen poistuessa lisämoduulit voivaan viedä muualle käyttöön. Vapaa sijoittaminen tontille tuo monipuolisuutta lisätilojen järjestelyyn. Pandemiatilanteessa etätyötilan jokaiseen huoneeseen voidaan avata erillinen sisäänkäynti. Näin etätyö voidaan erottaa asunnon vapaa-ajan tiloista altistamatta muita kerrostalon etätyöläisiä.

Havula on luhtitalo, eli kulku on rungon ulkopuolella ja hissillinen porrastorni erillinen, puolilämmin tila. Tämä pienentää rakennuksen lämmitettävää tilavuutta. Toisaalta moduulien väliin jäävä luhtitila on monikulmainen, ja siinä on paljon lämpöä eristävää vaippapinta-alaa. Vaihtoehtoisessa versiossa kulkutila on rakennusvaipan sisällä. Vaihtoehtoisen version kerrosala on noin 200 m² suurempi.

Maavärien lämminhenkinen pihapiiri
Havulan julkisivut ovat kulmikkaat, ja vasemmanpuoleisen kolmion niksautus luo eteläpuolelle kolmiulotteisuutta. Monimuotoisuus luo tasakattoiselle rakennukselle kiinnostavan silhuetin. Pitkät räystäät pidentävät julkisivun elinkaarta. Pintamateriaalina on määväreillä maalattu pystylauta. Pinta vanhenee kauniisti ja varmistaa materiaalin hengittävyyden.

Ulkorakennukset rajaavat viihtyisän pihatilan ja luovat viihtyisän kotiympäristön myös lapsille. Ulkosaunarakennuksessa on mökkeilyn tuntua. Ajaton detaljointi ja kunnolliset, kouriintuntuvat materiaalit ottavat innoituksensa mutkattomasta kansanrakentamisesta. Ulkorakennukset voivat olla yhteisiä useamman kerrostalon kesken, ja ne sopeutuvat asukaslähtöisiin käyttötarkoituksen muutoksiin.
Puukerrostalo Havula on suunniteltu lähtökohtaisesti Kauhajoelle tai sen kaltaiseen puurakentamisesta kiinnostuneeseen seutukaupunkiin. Rakennuksen tarkka asemointi ja piha-aittojen järjestely riippuu rakennuspaikasta.
Laajuustiedot (luhtikäytäväversio):
Kerrosalaa 1773 kem²
15 kpl yksiö 32 m²
6 kpl kolmio 69,5 m²
6 kpl kolmio 65 m²
Irtaimistovarastot 110,5 m²
Yhteiskäyttötila 16,5 m²
Saunarakennus 32 m²
Puolilämmin porrashuone 120 m²
+ Etätyöaitta 32 m²
Eero Okkonen, tutkija/arkkitehti SAFA, TAKO-hanke