Asuinhuone on asunnon tila, jota rajautuu seiniin (asuntojen sisäisiin, asuntojen välisiin ja/tai rakennuksen ulkoseiniin) ja yhdistyy muihin tiloihin yleensä ovien kautta. Asuinhuoneen minimipinta-ala on 7 m² ja sen on saatava suoraan luonnonvaloa. Yleisimpiä kerrostaloasunnon asuinhuoneita ovat olohuoneet tai tupakeittiöt sekä makuuhuoneet. Kokonaan omassa huoneessaan olevia keittiöitä rakennetaan vain harvoin.
Olohuone on asunnon julkisin tila, jossa vietetään aikaa ystävien kanssa. Lähinnä lapset käyttävät makuuhuoneitaan sosiaaliseen ajanviettoon. Useamman ihmisen jakama asunto saa on kuitenkin huomattavasti laadukkaampi, jos siitä voi erottaa kaksi erillistä tilaa päiväaskareita varten. Pandemiassa ja sen jälkilöylyissä ominaisuus korostuu. Kun asukkaat tekevät samanaikaisesti etätöitä, tuo työtilojen erillisyys työrauhan. Paras ratkaisu on toki kahdenkin ihmisen asuntoon kolmas asuinhuone, jonka voi sisustaa työ- ja harrastushuoneeksi.
Minkälaisia asuinhuoneiden pitää siis olla, jotta ne olisivat monikäyttöisiä ja sopeutuisivat asumisen muutoksiin? Makuuhuonetta suunnittelevalla arkkitehdilla on käytössä neljä työkalua: huoneen pinta-ala, pituuden ja leveyden suhde sekä kulkuaukkojen ja ikkunoiden ja kiintokalusteiden sijanti.
Rakennustietosäätiön suositus kahden hengen makuuhuoneen pinta-alaksi on vähintään 13 m² ja yleensä 16 m². Tilaan tulisi mahtua neljä komeroa á 600 mm x 600 mm. Ikkunapinta-alaksi laki edellyttää 10 % pohjapinta-alasta. Parisängyn ohjemitat ovat 1,6 x 2,1 m, ja sen molempien sivujen pitäisi olla vapaat. Huoneen esteettömyys edellyttää 1300 mm halkaisijaltaan olevan pyörähdysympyrän mahtumisen sängyn toiselle reunalle.
Onko niukkuus tehokkuutta?

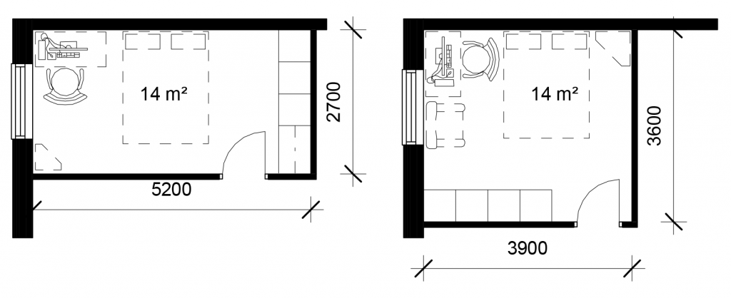
Niukin ratkaisu, joka tuottaa määräysten mukaisen makuuhuoneen, on arkkitehtin kritisoima niin kutsuttu grynderimakuuhuone. Tällaisen huoneen leveys on vähimmillään reilut kaksi metriä, jolloin parisänky yltää huoneen seinästä seinään. Sänkyyn kuljetaan kahdesta liukuoviaukosta, jotka ovat sängyn kummallakin puolella; toinen ikkunaseinän ja toinen komerorivin vieressä. Makuu- ja olohuoneen erottava väliseinä on ääntä eristämätön sermi, jonka taakse ovet liukuvat. Mikäli ikkunan puolella nukkuva herää ensin ja tarvitsee komerosta vaatteensa, on hänen avattava oma ovensa, poistuttava makuuhuoneesta, tehtävä lenkki olohuoneessa, avattava toinen likuovi ja palattava makuuhuoneen toiseen puoliskoon. Asuntosuunnittelija ja rakennuttaja ovat tehneet asian selväksi: tämä tila on nukkumista varten. Kirjahylly, työpöytä ja piironki löytäkööt sijansa muualta.
Kukaan tuskin ajattelee yllä kuvatun ratkaisun olevan laadukas tai mukava. Sen hyvät ominaisuudet ovat tehokkuus ja edullisuus. Asunnossa voi yöpyä ilman, että neliömäärä ja hinta karkaavat asunnonostajan tai vuokralaisen tulotason yläpuolelle – ja rakennuksen pystyttäminen pysyy kannattavana liiketoimintana. Energiaa asunnon lämmittämiseen kuluu vähemmän.

Toimintojen sijoittaminen mahdollisimman pieneen pohjapinta-alaan on kuitenkin yksioikoinen käsitys tehokkuudesta. Kun ”hukkaneliöt” minimoidaan, luodaan asuntoon tiloja, jotka eivät sovellu mihinkään. Oviaukot ovat tästä hyvä esimerkki. Niiden kummallekaan puolelle ei voi sijoittaa huonekalua. Kun makuuhuoneessa on kaksi oviaukkoa, syntyy automaattisesti kaksin verron kulkutilaa – myös olohuoneen puolelle. Kun vuoteen kumpikin puoli vaatii automaattisesti kulkutilansa, voisi toista puolta helposti hyödyntää työpöydän edustana – tarvitaan vain pari lisäneliötä itse pöytää varten. Tuloksena on jo asuinhuone, jolla on kaksi käyttötarkoitusta: lepo ja työskentely.
Tilaa asukkaan tulkinnalle

Makuuhuoneen monikäyttöisyys ei ole kuitenkaan pelkkää käyttötarkoitusten määrän analyyttistä kasvattamista. Laadukas asuntosuunnittelu jättää tilaa käyttäjälle eli asukkaalle muovata asuinympäristöään mieltymyksensä mukaisesta. Osa ihmisistä haluaa nukkua seinän vieressä, parisängyssäkin. Ja lukuharrastuksesta nauttiva saattaa haluta sijoittaa kirjahyllynsä suoraan vuoteen ja seinän väliin, jotta kirjallisuuden hedelmät ovat lepäillessä käden ulottuvilla. Neliömaksimoitu makuuhuone tekee kummastakin mahdottoman; siinä missä normaalissa makuuhuoneessa sängyn siirtäminen seinustalle vapauttaa keskeistilaa, tuhoaa vastaava liike grynderimakuuhuoneen tiukan toimintalogiikan.
Grynderimakuuhuone on vain ääriesimerkki tilanteesta, jolloin neliöiden minimointi luo vaikeasti hyödynnettävää tilaa. Normaalissa yksiovisessa makuuhuoneessakin liiallinen kapeus johtaa siihen, että kalustusmahdollisuuksia on vain yksi. Neliömäinen pohjaratkaisu antaa asukkaille mahdollisuuden pyöritellä kalusteitaan mielensä mukaan ja muodostaa kotiinsa työpisteen, lukunurkan tai löhökeitaan – ja pyhittää asumuksensa Tasapäistävän tehokkuustajattelun yläpuolelle.
Eero Okkonen, tutkija/arkkitehti SAFA, TAKO-hanke